Construction

Project overview

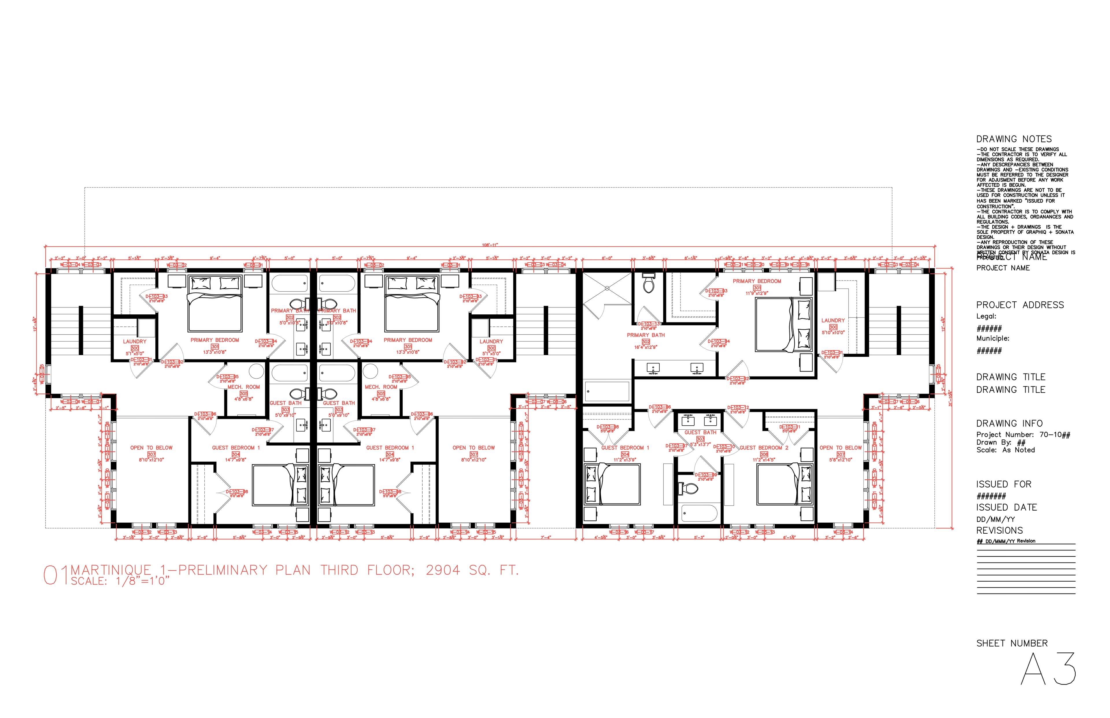
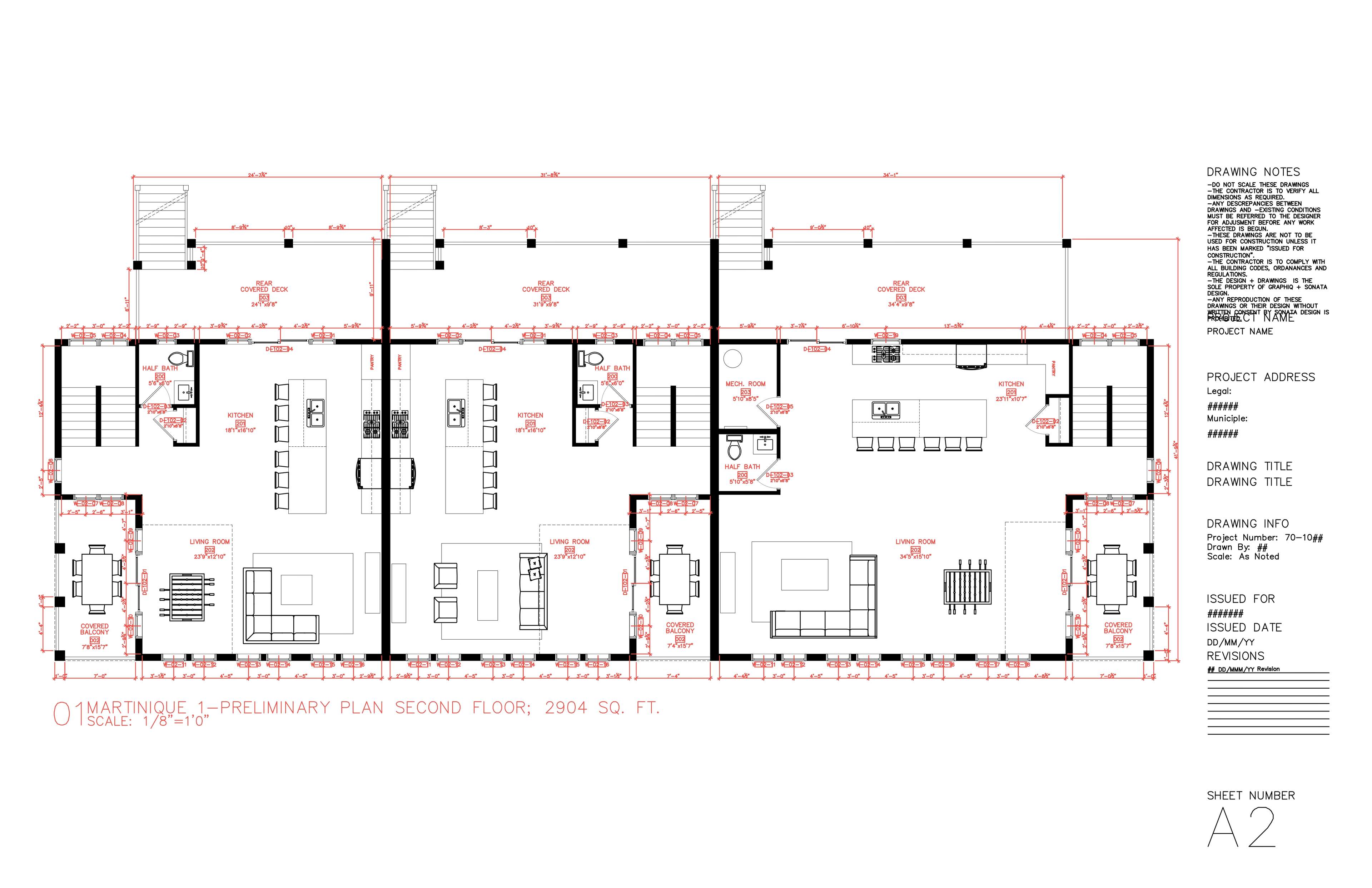
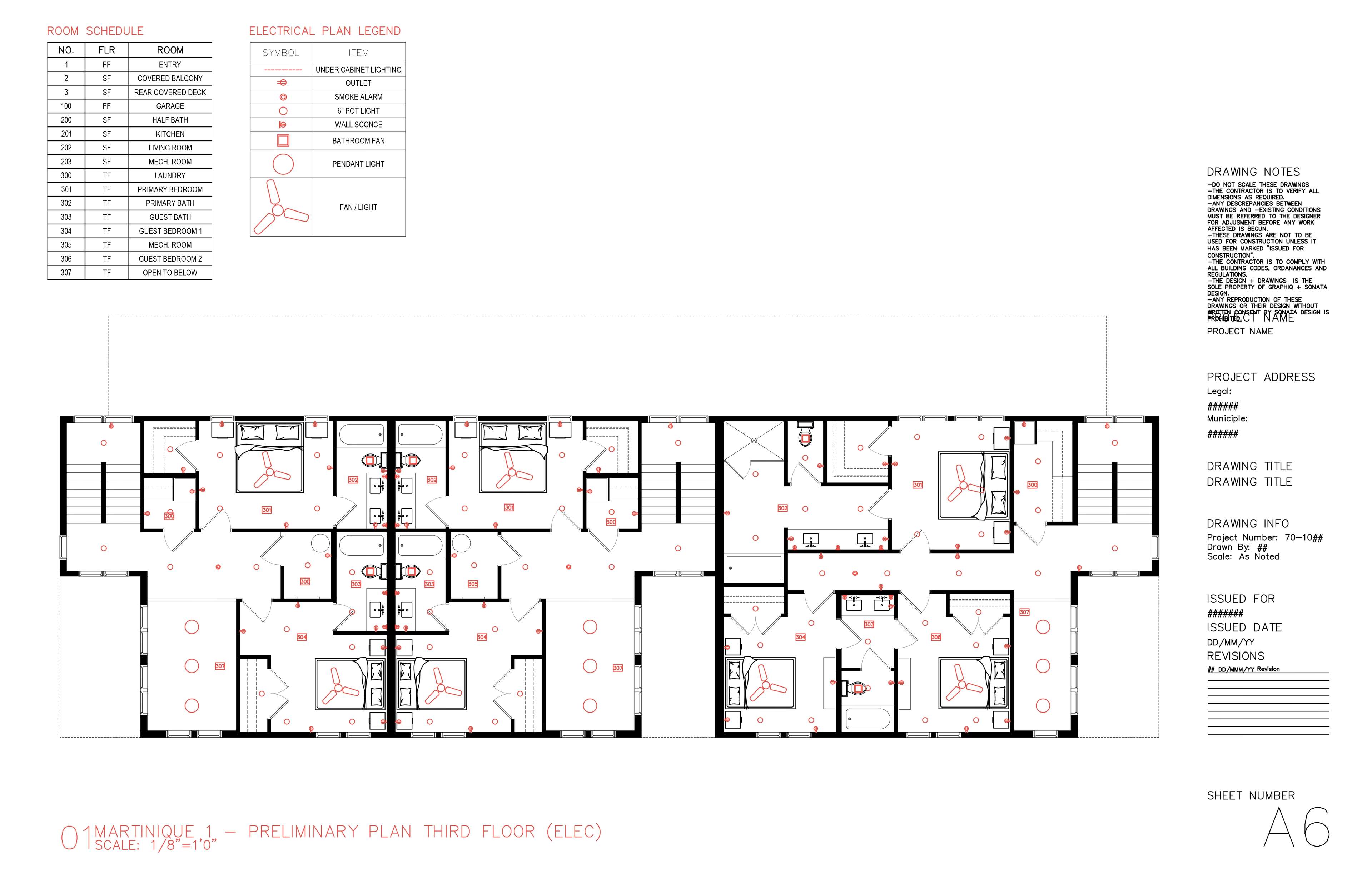
Working with Empower Projects, I was given inspiration images and basic project outlines and from there, I developed construction drawings for vacation homes in the Bahamas.

Inspiration Images

Construction Documents

Belinda Dunford

6-366, 94 Ave. SE | (403).993.0108 | b.dunford@outlook.com

© Belinda Dunford, 2025