CONVERGE

Project overview

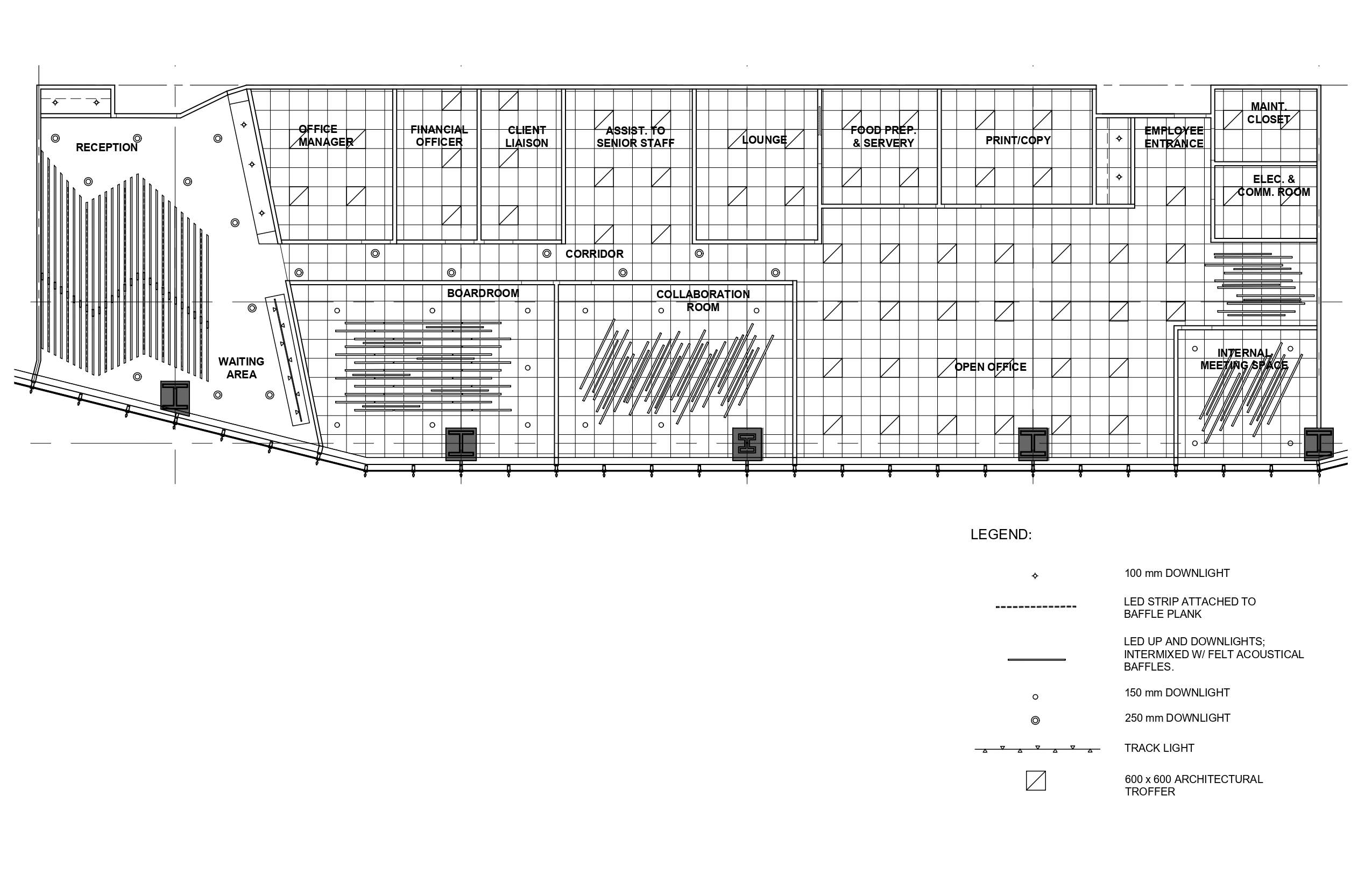
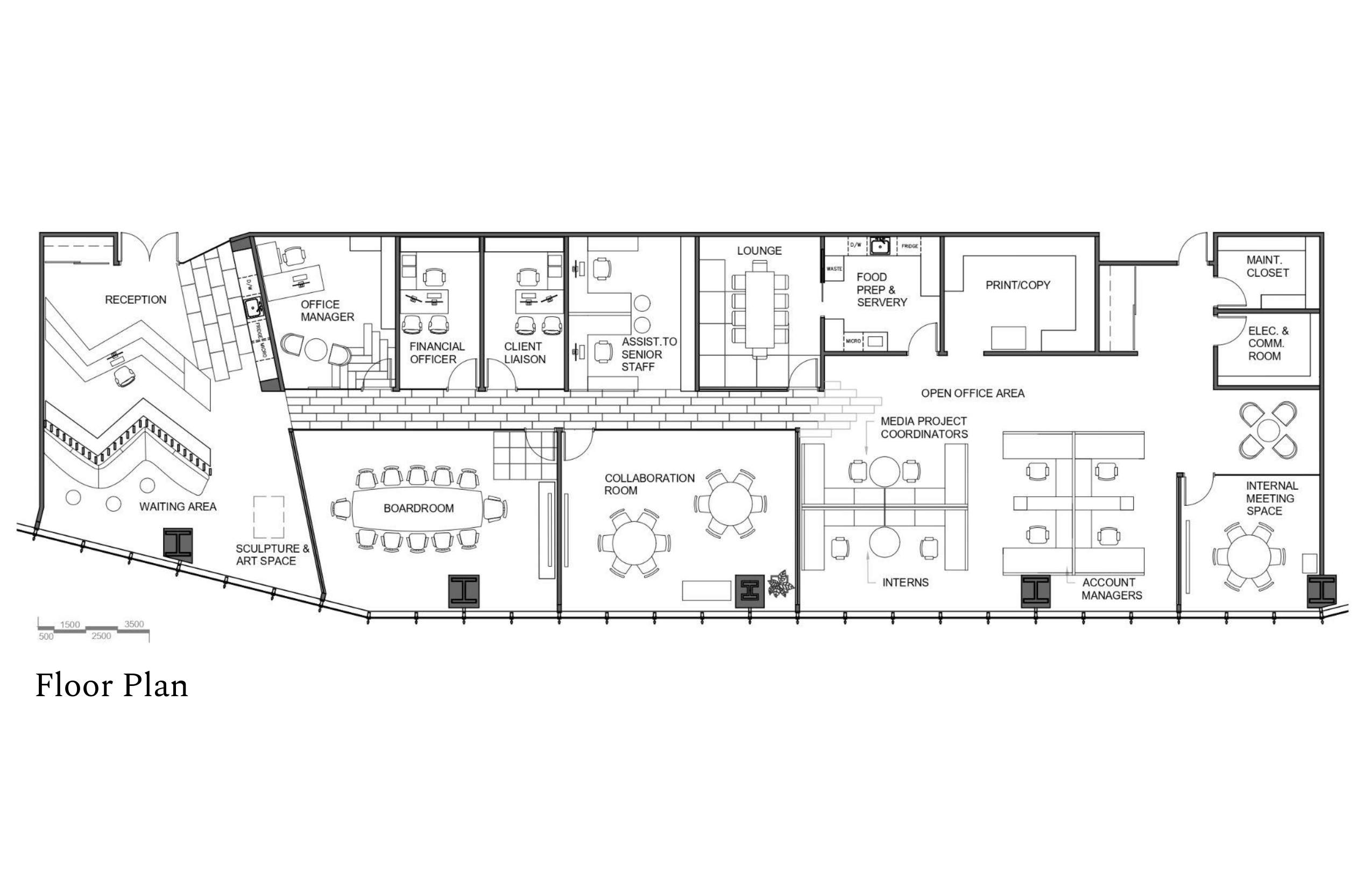
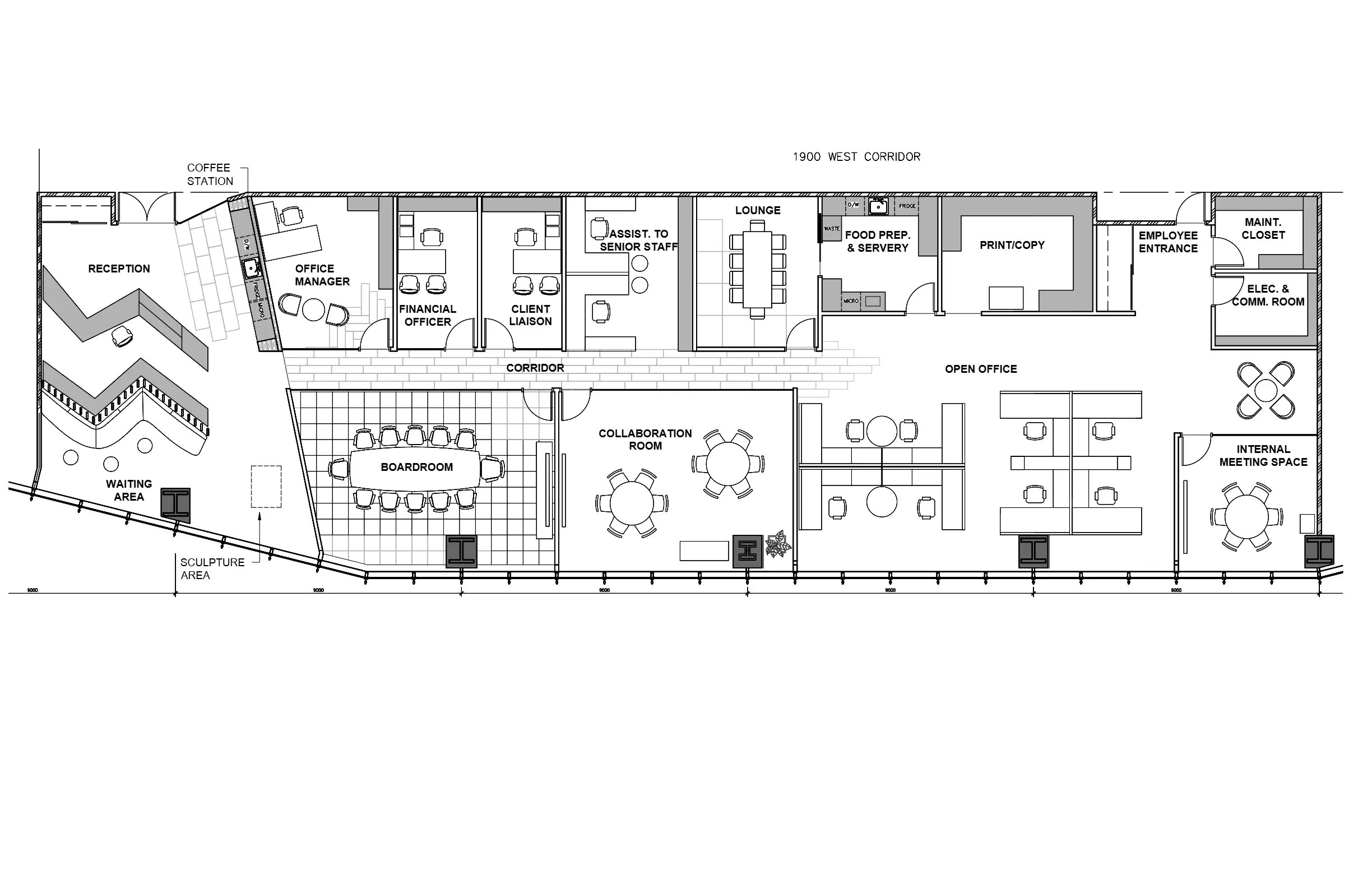
This project involves the design of a commercial office located in the Eighth Avenue Place building in downtown Calgary. This space is a balance of form and function. The surrounding mountainous environment of Calgary is highlighted with numerous design elements, while still prioritizing practicality and simplicity throughout. This office provides an accessible and welcoming space, while fostering an intertwining of creativity and productivity.

Details

I took the initial programming provided by the project parameters and developed them further, alongside my overarching concept, creating a functional and interesting space, highlighted by the finishes and furniture I chose, all of which worked together to create a welcoming space that evoked the surrounding mountainous landscape.

Specifications

Area of site

5026 ft2

Date

2022

Program year

Second

Tools used

AutoCAD, SketchUp, Enscape, Photoshop, InDesign

Abstract Concept Model

Construction Drawings

Perspective Sketches

Renders

Belinda Dunford

6-366, 94 Ave. SE | (403).993.0108 | b.dunford@outlook.com

© Belinda Dunford, 2025