KFI

Project Overview

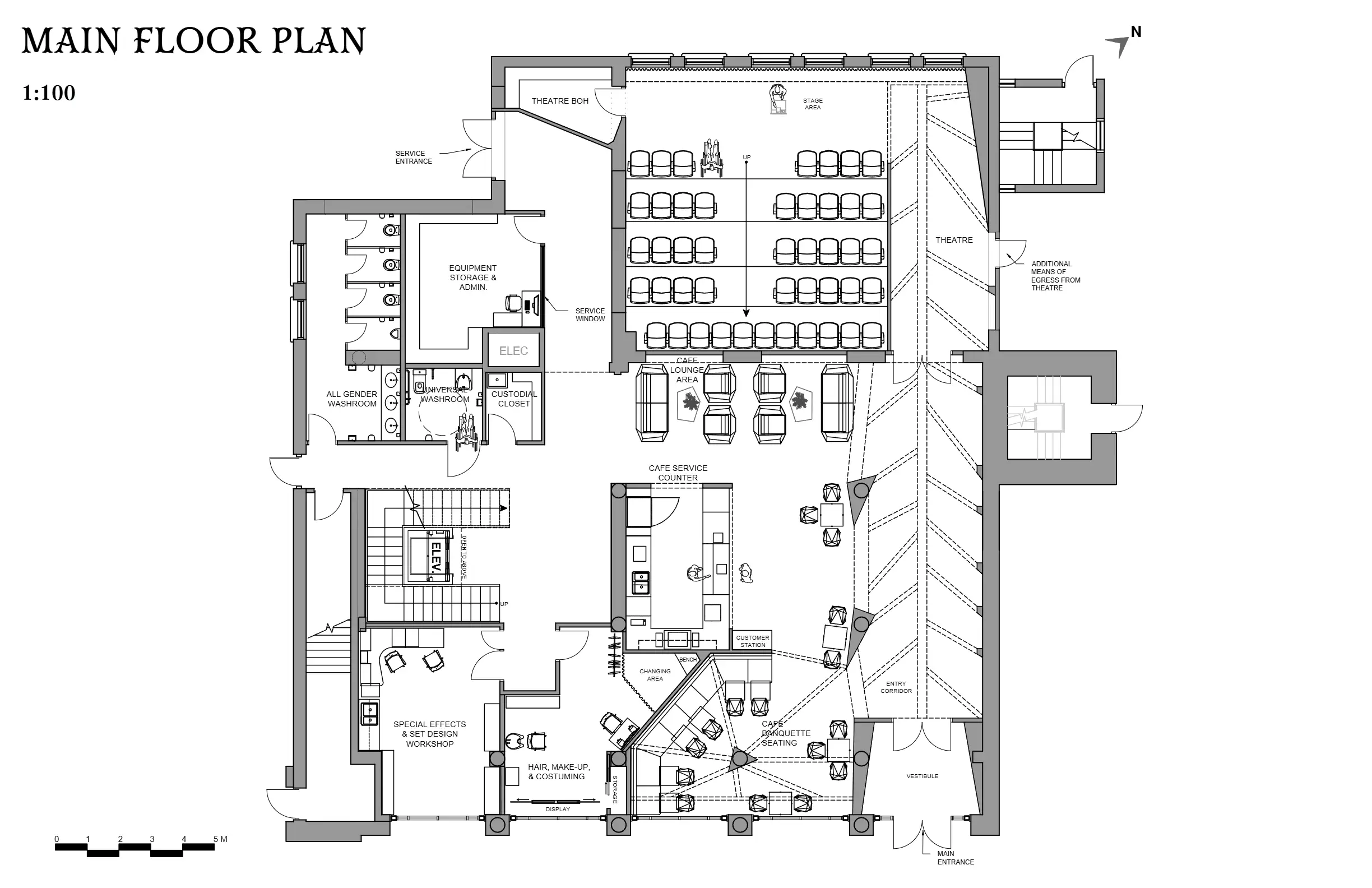
The location for my thesis project was Calgary's historic Firehall No. 1; the intriguing architecture and downtown location offering an exciting framework for design development.

Specifications

Area of site

10,000 ft2

Date

2023-2024

Program year

Fourth

Tools used

AutoCAD, SketchUp, Enscape, InDesign

Concept

This thesis project required an iterative approach over the course of my final year in my design program, so it needed to be something about which I was passionate. With this in mind, I opted to develop my project as a love letter to horror movies. I designed a boutique, horror-focused film/media school and event venue, the Krueger Film Institute. The KFI is a darkly whimsical space that is captivatingly over the top and caters to the basic human needs of self-expression and community connections.

Abstract Ideation

Construction Drawings

Materials

Renders

Belinda Dunford

6-366, 94 Ave. SE | (403).993.0108 | b.dunford@outlook.com

© Belinda Dunford, 2025